欢迎来到 声游纪✨!
我们是三位喜欢到处乱逛的建筑师——走地鹅、美丽虾和鼹鼠大王🌸我们热衷于探索每一个目的地的“建筑·城市·文化·历史”,并希望将这些有趣的故事和旅途中的见闻跟大家一起分享!

这一期我们将带大家走进首都北京的核心——于2024年7月27日申遗成功的北京中轴线!
这条穿越了北京老城正中心、绵延了7.8公里、存在了700多年的南北轴线,蕴藏着中国古代都城规划的智慧与中华文明生生不息的文化基因。我们会从“中”字的甲骨文起源,讲到农耕文明与宇宙观的对应;从元大都奠基、明清调整,讲到现代保护与数字重生。
希望大家听完这期,都能感到“不虚此行”呀!
本期主要聊了什么
- 北京中轴线的官方定义
- 北京中轴线为什么是南北向?农耕文明与宇宙观
- 北京中轴线与欧洲城市轴线的比较
- “中”字从“旗帜”到“权力”,以及“中庸中正”的思想
- 梁思成首次提出“北京中轴线”概念
- 元明清四次大规划:中轴线如何一步步定型
- 从皇权象征到人民共享,中轴线的现代新生与数字保护
时间轴
04:27 中轴线的定义
06:08 中轴线这种规划理念的形成
09:44 和欧洲城市轴线的区别
11:40 “中”字的起源 & 哲学内涵:中庸中正、权力中心
16:18 梁思成提出“北京中轴线”一词
16:55 北京中轴线上有哪些建筑群
18:16 北京中轴线过去一千年里的四次大演变
18:45 第二次演变:元大都奠基
23:23 第三次演变:明南移边界,拉齐轴线
25:10 第四次演变:外城修建,基本定型
27:15 历史上中轴线的小故事:县太爷进宫的心理体验
28:19 近代破坏与现代保护(八国联军、天安门阅兵、永定门复建)
30:47 中轴线数字重生
33:55 下期预告
图片参考
“中”字的形体来源

申遗成功的北京中轴线上的15处建筑遗产

宋淳佑天文图,现藏苏州文庙

北京元大都平面图(侯仁之《北京历史地图集》)

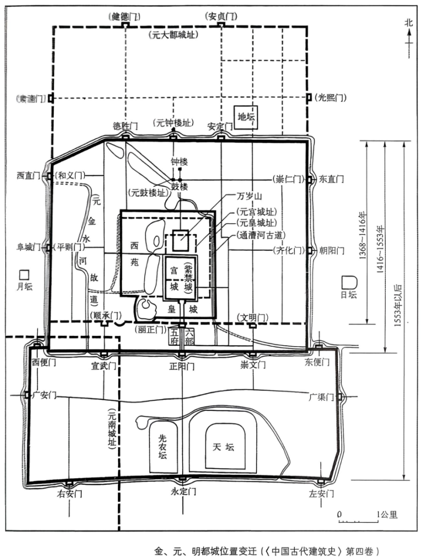
元明两代北京城发展示意图(《中国古代建筑史》)

清北京城平面图(侯仁之《北京历史地图集》)

铁路穿过北京永定门以西的外城城墙

八国联军在中轴线上举行阅兵式

相关链接 & 资源
- 张馨予. 中轴线前世今生:北京何以成为北京 [J].中国新闻周刊,2022.10.3总第1063期
- 孟凡人. 元大都的城建规划与元大都和明北京城的中轴线问题 [A].故宫学刊, 2006( 3): 96- 121.
- 梁思成.北京: 都市计划的无比杰作.新观察,1951,2( 4): 7- 8.
- 李建盛. 北京中轴线与国外重要城市中轴线文化空间和功能比较研究 [J]. 北京联合大学学报(人文社会科学馆), 2021,19(1):46- 58.
- 北京中轴线官网:bjaxiscloud.com.cn
- 云上中轴小程序:查阅建筑介绍、门票、游览路线,还能玩中轴线小游戏!
- 更多图片可在微信公众号“声游纪”中查看
一起闲逛
喜欢这一期的文化漫游?欢迎在小宇宙/微信公众号讲述你对北京中轴线的记忆。
也期待听到你亲自走中轴线的故事!
点亮爱心❤️、收藏本期🌟、分享给准备去北京的朋友~
下期预告
北京中轴线系列总共分成了五期,第一期主要是来聊聊中轴线背后的历史文化和形成过程,后面四期选取了中轴线上的几个有趣的景点,分别是先农坛、天坛、故宫和钟鼓楼,大家可以期待一下哟!
那我们下期先农坛见~

